千葉市さつきが丘13期 新築戸建 全1棟
| 価格 | 面積/間取 | 構造 | 管理費 | 種別 |
|---|---|---|---|---|
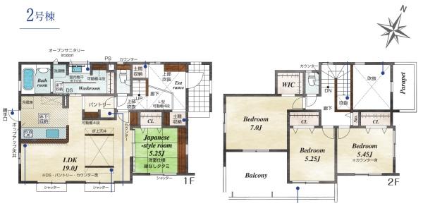
| 4,190万円 | 170.57㎡(公簿) / 4LDK | 木造 | 新築一戸建 |
コメント敷地面積50坪超え!カースペースには並列で3台駐車可能!長期優良住宅認定物件
物件概要
| 所在地 | 千葉県千葉市花見川区さつきが丘1丁目 |
|---|---|
| 交通 | 総武・中央緩行線「新検見川」駅 バス乗車時間9分 さつきが丘団地入口バス停 |
| 価格 | 4,190万円 |
| 面積/間取り | 4LDK |
| 延べ床面積 | 102.67㎡ |
| 部屋の向き | 南 |
| 築年月(築年数) | 2026年3月(築0年) |
| 種別/構造 | 新築一戸建/木造 |
| 部屋/所在階/階建 | 地上2階 |
| 現況/入居時期 | 新築/即引き渡し可 |
| 建ぺい率 | 60% |
| 容積率 | 200% |
| 接道状況 | 二方 |
| 駐車場 | 有/空き3台 |
| 接道1 | 方向:南 / 種別:公道 / 幅員:6m |
| 接道2 | 方向:西 / 種別:公道 / 幅員:6m |
| 設備条件 | 角地、階建 2階建、電気、上水道 公営、汚水 下水道、ガス 都市ガス、複層ガラス、24時間換気システム、照明器具 クローゼット、床下収納、パントリー、浄水器、浴室暖房、バルコニー バルコニー有、BELS/省エネ基準適合認定建築物 |
| 物件番号 | 146401-15421 |
| 備考 | \私たちにお任せください♪/物件見学のご希望やローンのご相談、その他どんな小さなことでもぜひご連絡ください。 私たち不動産のプロが親切・丁寧をモットーに、ご回答させて頂きます。 時間外のお問合せは、エントリーフォームからのご連絡をお願い致します。 お会いできることを楽しみにしております! |
貸したい・買いたい・売りたいをご希望のお客様はお気軽にお問合せ下さい
物件お問合せ
条件に近い物件









